Now Let£231 /per week450 sq ft shop space available to rent in N7 Finsbury park, Hornsey road London N7 Finsbury Park
𓉩 450 ft²
𓉩 450 ft²
Price:
Description
| N7_Finsbury Park | Hornsey Road |
Large 450 sq ft shop space available formerly used as music shop to rent in N7 Finsbury park, Hornsey road London
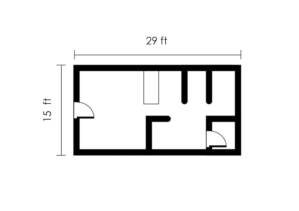
Shop space is 450 sq ft in size with a large shop floor area, kitchen / breakfast area and toilet in the back.
The shop has stone tiled flooring throughout, white walls and a ceiling height of 9 ft.
The shop comes with water and electricity points.
The premises comes with an A1 license.
The shop has a roller shutter for added security.
The shop was formerly used as a music store and is suitable for similar practices, such as an art gallery, photography studio, bicycle shop etc.
The premises come with 24 hour access.
Nearest Stations: Upper Holloway 0.4 miles and Finsbury Park 0.5 miles
Available Now
* Three months deposit plus three months rent is required
* Contracts are 12 months long
* Rent excludes bills and Business rates
