Now Let£193 /Week445 sq ft split level shop available to rent on busy Kingsland High road E8 Dalston (rent free period offered for ingoing tenants) E8 Dalston|E8 Haggerston
𓉩 445 ft²
𓉩 445 ft²
Price:
Description
E8_Dalston Kingsland |442 Kingsland Road|
445 sq ft split level shop available to rent on busy Kingsland High road E8 Dalston
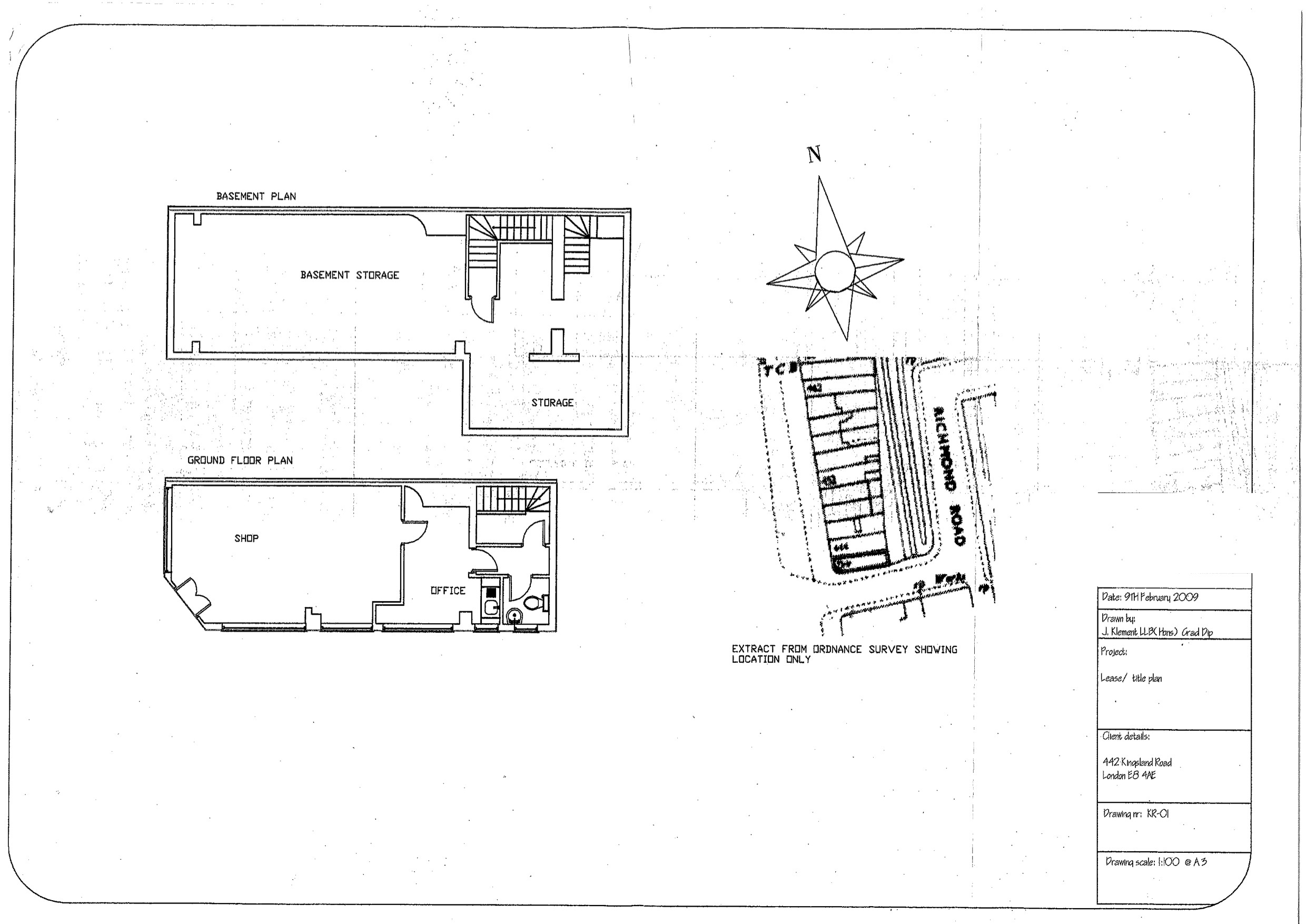
The shop has 270 sq ft of space on the ground floor and the basement is 175 sq ft, there is a total of 445 sq ft shop floor space available.
The previous tenant began installing a toilet and sink in the basement, the work is unfinished. He was also in the process of refurbishing the shop, so the electrics, lighting and water need to be finished.
The Landlord is offering a rent free period for the ingoing tenants to do whatever work is required.
There is a roller shutter in front of the shop front for added security.
The unit has electricity, lighting sockets, and water.
Flexible rent free period given for ingoing tenants to refurbish unit.
The shop has 24hr access.
Nearest Station: Dalston Kingsland Overground Stn / Dalston Junction Stn / Haggerston Stn / Hoxton Stn
Can be used for a variety of purposes e.g. Gallery Space / Tattoo studio/ photographic studio/ artists / sculptors / designers / photographers etc.
Available Now
* One months deposit plus one months rent is required
* Contracts are 12 months long
* Rent excludes bills and Business rates
£193PW / 834 PCM
