Now Let£415.50 /per weekSplit level 720 sq ft shop available to rent on busy street in E15 Stratford E15 Stratford
Price:
Description
| E15_Stratford | 223 Leyton Stone Road |
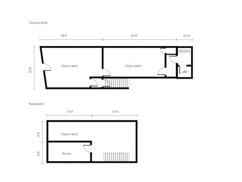
Large split level 720 sq ft shop space available to rent on Leytonstone road in E15 Stratford
The shop has a large open area at the front of the space, with a kitchen area and toilet at the back.
on the lower ground floor is additional office space which is suitable for a secluded office area.
The shop has light blue and kiwi green pained walls,wooden laminate flooring and a big window shop front.
The shop comes with water, electricity points, lighting and gas central heating.
The premises comes with an A1 / A2 license.
The shop has a roller shutter for added security.
The shop was formerly used as an internet cafe and financial advise institution.
The premises come with 24 hour access.
Nearest Station: Leyton 0.6 Miles / Stratford 0.8 Miles / Maryland 0.4 Miles /
Available Now
* One months deposit plus one months rent is required
* Contracts are 12 months long
* Rent excludes bills and Business rates
