Now Let£500 /per weekNot Available! Live work unit available in converted warehouse in Fulham, Byam Street, London SW6 SW6 Fulham
𓉩 1100 ft²
𓉩 1100 ft²
Price:
Description
THIS SPACE HAS BEEN LET AND IS NOT AVAILABLE!
| SW6 Fulham | Byam Street |
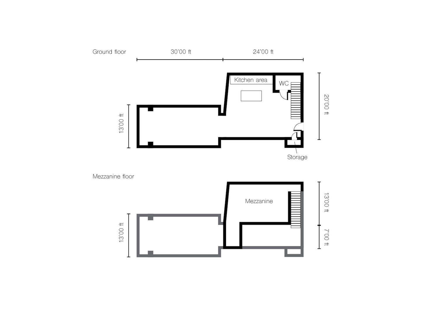
Split level live work unit to rent – 1100 sq ft gallery style unit with high pitched roof and mezzanine floor in warehouse conversion
Beautiful live work unit available in converted warehouse
The studio measures 800 sq ft on the ground floor, comprising of a large open area, with high pitched roof (19’00) and glass skylights, plus an open plan kitchen area, and a bath/shower/toilet room.
There is also a 300 sq ft mezzanine area.
The walls are painted white, and the studio has a wooden floor.
The studio is gas centrally heated.
Fantastic location – ideal for artists / as a studio / office / showroom / and for photographers or sculptors
Nearest Station: Fulham Broadway
Available Now
* One months deposit plus one months rent is required
* Contracts are 12 months long
* Rent excludes bills & Council Tax (Band F)
