Now Let£157 /per week + VATNot Available! Brand new selection of retail / creative units available to rent (165 /195 / 200 /215 / 225 sq ft) in The Factory, on trendy Shacklewell Lane E8 Dalston
𓉩 165 ft²
𓉩 165 ft²
Price:
Description
THIS SPACE HAS BEEN LET AND IS NOT AVAILABLE!
| E8 Dalston | Shacklewell Lane |
Brand new selection of retail / creative units available to rent in The Factory, on trendy Shacklewell Lane, E8 Dalston
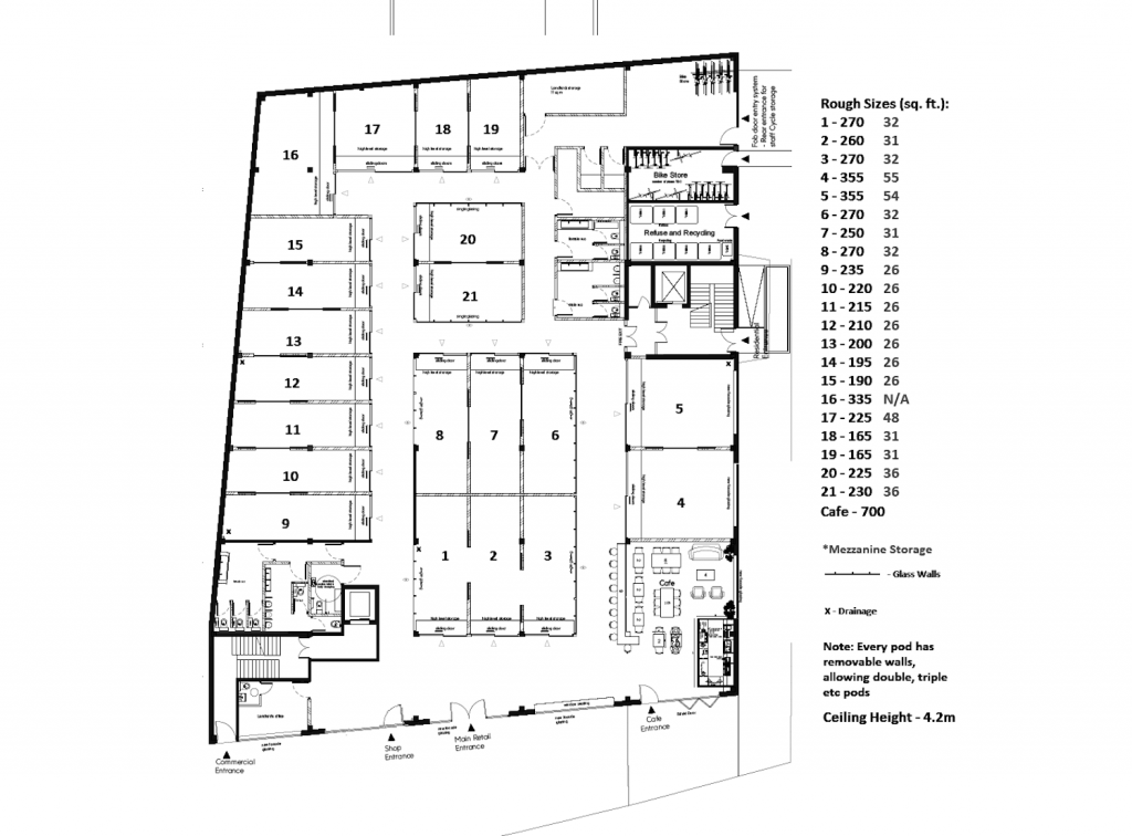
The glass fronted studios are all located on the ground floor and are following sizes and prices:
Studio 11 = 215 sq ft – £ 187 pw
Studio 13 = 200 sq ft – £178 pw
Studio 14 = 195 sq ft – £174 pw
Studio 17 = 225 sq ft – £199 pw
Studio18 = 165 sq ft – £157 pw

Each studio consists of a large open work space, with a very high roof, lots of natural light, marble stone flooring, exposed brick and plywood walls.
The studios come with air conditioning , electricity and shared Wifi.
The Factory in Dalston is a modern retail venue for creatives. Featuring all-independent lifestyle, art, fashion and wellness brands, the venue is the epitome of creative Hackney
Shaklewell Lane is made up of a community of creatives that live and work within Dalston, a trendy area known for the creative community established in the vicinity, which offer various amenities such as yoga, cafes, cocktail bars, vintage stores and convenience shops.
Dalston has a community of creative individuals, start-ups and small businesses, enjoying the benefits of an exceptional multi-purpose space.
Nearest Station: Dalston Kingsland Station (overground) / Dalston Junction Station
Available Now
* One months deposit plus one months rent is required
* 12 months Commercial contract
* Rent excludes bills & business rates
Communal Areas :

