Now Let£330 /per weekLive work style warehouse conversion to rent – 750 sq ft first floor unit in Forest Hill SE23 SE23 Forest Hill
𓉩 750 ft²
𓉩 750 ft²
Price:
Description
| SE23_Forest Hill | Church Vale |
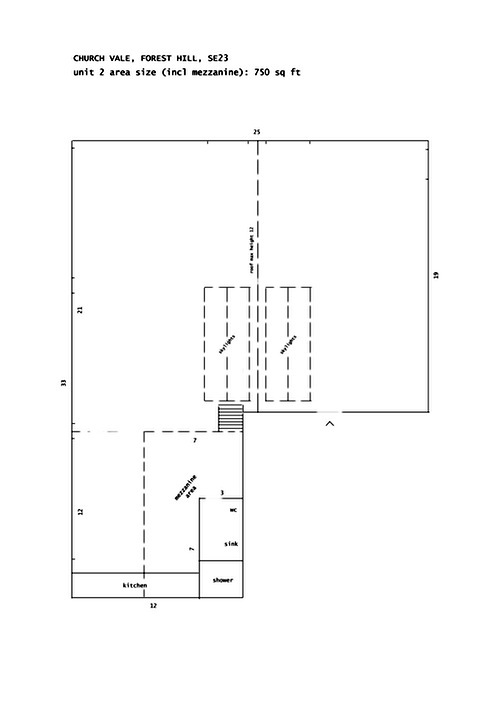
Live work style warehouse conversion to rent – 750 sq ft first floor unit.
Bright, spacious live work style studio available to rent in converted warehouse.
The unit is bright, and consists of a large open area plus a smaller mezzanine area.
The studio has a high pitched roof, lots of windows to let in lots of natural light, and a wooden floor.
There is a kitchen, shower, WC and the studio is gas centrally heated.
Situated in Forest Hill, (neighbouring East Dulwich).
Can be used for a variety of purposes… either for artists / sculptors / photographers / designers / or as design studios etc
Nearest Station: Forest Hill ( 1 min walk ) – 13 mins to London Bridge / Forest Hill East London Line Extension
Available 20th April 2018
* One months deposit plus one months rent is required.
* Contract 12 months
* Rent excludes bills and business rates.
