Studios & Offices£480 /weekOffice / studio available to rent in The Powerhouse, Sancroft St, London, SE11 SE11 Kennington
𓉩 1358 ft²
𓉩 1358 ft²
Price:
Description
| SE11_Kennington | The Power House | Sancroft St |
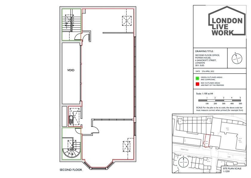
Creative office space to rent with large open area 1,358 Sq ft in size
Originally an electricity substation, The Powerhouse was redeveloped by Garnett Cloughley Blackmore & Associates, whose house style of pure geometric forms and creative use of glass, acrylic and aluminium, blended with pop art styling, epitomised the 1960s’ swinging London.
The office is 1,358 Sq ft in size and contains a large open area, with an additional office room and break room / area with kitchen.
The space is fully carpeted and has bright white walls, with skylights running the length of the unit for lots of natural light, and large windows in the main area.
The unit also has electricity, gas heating, lighting, phone socket points with Cat5 cabling, an ADT Alarm and 2 WCs.
The premises are well suited to professional and creative occupiers such as admin based companies, therapists, education, multi media, training facilities etc.
Nearest Stations: Kennington (0.3 mi), Oval (0.4 mi), Vauxhall (0.5 mi)
The Powerhouse is on the Cycle Superhighway Route
Available Now
* Two months deposit plus one months advance rent is required
* Contracts are minimum 12 months long
* Rent excludes bills
& business rates
*Service charge is extra and based on share of insurance / gas heating / alarm / cleaning.
£480 Per week / £2083.33 Pcm
