Studios & Offices£900 /per weekCreative Artist Studio Space to Rent in Windus Road, Stoke Newington N16 (negotiable rent free period offered) N15 Seven Sisters
𓉩 1800 ft²
Studios & Offices
£900 /per week
𓉩 1800 ft²
Price:
London
£900
/per week
Description
| N16_ Stoke Newington | Windus Road |
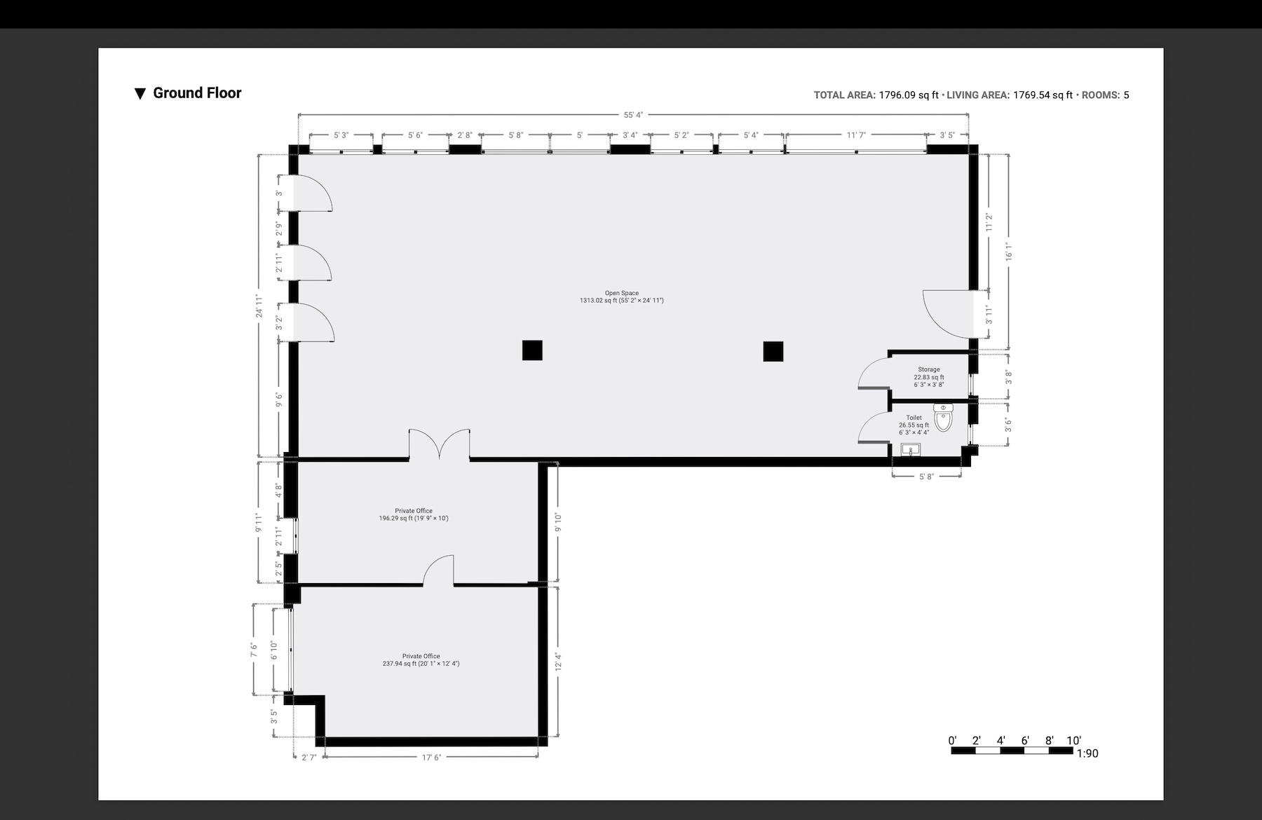
A ground floor creative workspace / art studio is available to rent in a converted warehouse on Windus Road, just a short walk from Stoke Newington station.
The space is 1800 sq ft with a concrete floor, and is divided into 3 separate areas. There are 3 entrances to access the different areas, and there is also a large roller shutter.
The unit is very secure, with steel security grilles, and can be accessed from the main street, or from a private mews.
The unit also has it’s own toilet and sink.
The Landlord has offered a negotiable rent free period if ingoing tenant(s) wished to refurbish / modify the unit.
Available Now
- £3900 per calendar month / £900 per week
- Minimum 12 months contract, ideally longer
- One month’s rent + one month’s deposit required
Property features
Property details
Size:
1800 ft2
Furnishing:
London
Bedrooms:
London
Ceiling Height:
London
Bathrooms:
London
Construction Year:
London
Floor:
London
Renovation:
London
Communal Kitchen:
yes
Communal WCs:
yes
Warehouse Conversion:
yes
Communal Outside Area:
yes
24 Hour Access:
yes
Communal Area:
yes
Communal Toilet:
yes
Natural Light:
yes
Property utility
Heating:
London
Intercom:
London
Air Condition:
London
Window Type:
London
Fireplace:
London
Cable TV:
London
Elevator:
London
WiFi:
London
Outdoor features
Garage:
London
Parking:
London
Garden:
London
Disabled Access:
London
Swimming Pool:
London
Fence:
London
Security:
London
Pet Friendly:
London
Video
Floor plans
360° virtual tour
Location
Windus Road
N15 Seven Sisters
