Now Let£270 /per week Incl All BILLS780 sq ft unit is available in North End Road, West Kensington W14 W14 West Kensington
𓉩 780 ft²
𓉩 780 ft²
Price:
Description
| W14_West Kensington | North End Road |
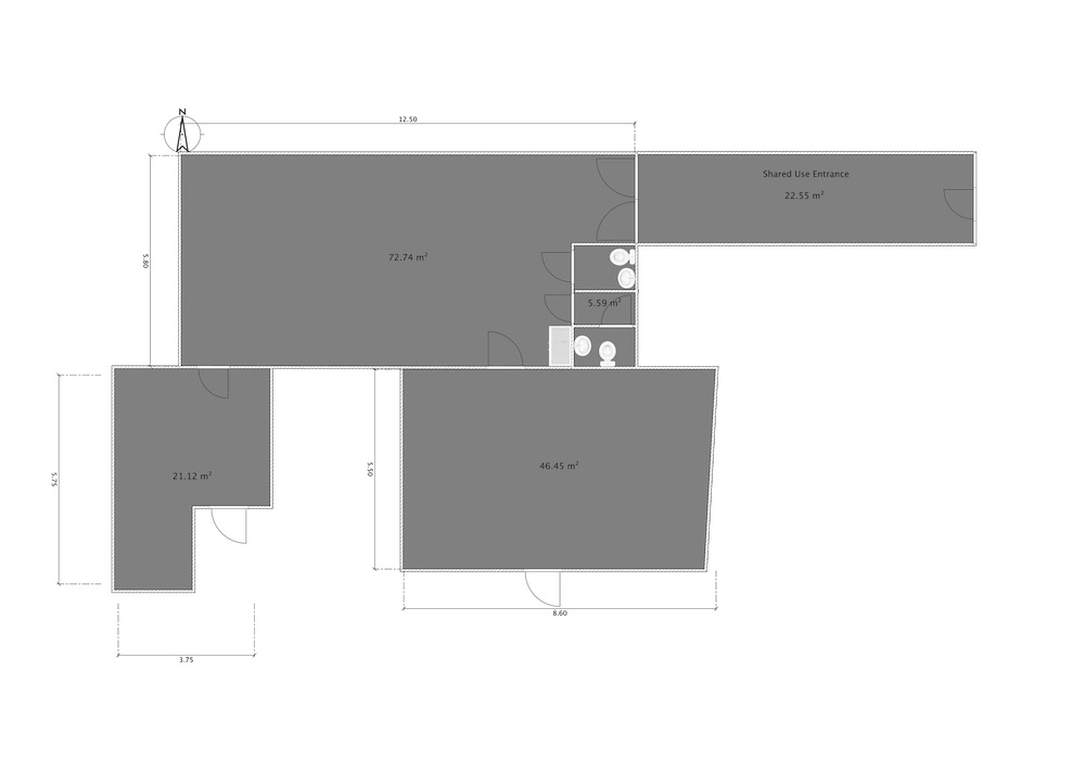
780 sq ft ground floor warehouse studio available to rent in West Kensington W14, North End Road.
The total area is 780 sqft, and there are four small offices with one tenant in each that use the space as their access route, but all of whom are not there full time.
Maximum dimensions of the space are 12.5m x 5.8m.
The unit has grey concrete flooring throughout the entire space.
The unit has skylight windows for natural light.
The unit has 24 Hour access.
Ideal for artists / photographers / designers / creative types
Available Now
* One months deposit plus one months rent is required
* Contracts are minimum 12 months long
* Rent includes bills and Business rates
