Coming Up£POA /per week580 sq ft studio E3 Bow
𓉩 580 ft²
Coming Up
£POA /per week
𓉩 580 ft²
Price:
£0
/per week
Description
| E3_Bow | Autumn Street |
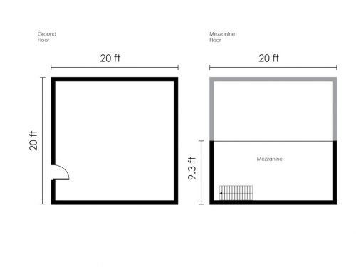
400 sq ft ground floor + 180 sq ft mezzanine floor
Property features
Property details
Size:
580 ft2
Communal Area:
yes
Communal WCs:
yes
Space Functions:
yes
Mezzanine:
yes
Studio:
yes
Property utility
Outdoor features
Video
Floor plans
Location
Autumn Yard, 39 Autumn St, London E3 2TT
E3 Bow
