Now Let£300 /per week Incl All BILLS550 sq ft creative studio available to rent with mezzanine and 2 separate spaces in fantastic location E9 Homerton, Mackintosh lane next door to overground station. E9 Homerton
𓉩 550 ft²
𓉩 550 ft²
Price:
Description
| E9_Homerton | Mackintosh Lane |
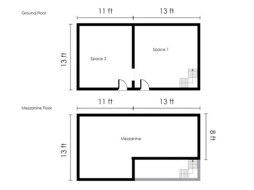
550 sq ft creative studio available to rent with mezzanine and 2 separate spaces in fantastic location E9 Homerton, Mackintosh lane next door to overground station.
The converted warehouse studio consists of 2 studio rooms and a mezzanine floor with skylights.
The studio has bright white walls, ocean blue concrete flooring on the ground and carpet flooring on the mezzanine.
Greenhouse studios offer a vibrant, trendy and creative co-working environment for individuals to embrace and pursue their professions. The studios are based less than one minute away from Homerton Overground Station in East London.
Join a community of fashion designers, graphic designers, artists and more in the heart of East London.
This Studio benefits from:
24/7 access
Two floors both high ceilings
natural light
ethernet plugs
super-fast fibre leased line broadband
central heating
on-site manager
printing / photocopier
Meeting room in main space
Communal kitchen
Three bathrooms and disabled access
Shower room
Events space
Complimentary Tea & Coffee
Friday Socials
Hatch Cafe next door
Homerton Overground next door
All bills are included
Available Now
* One months deposit plus one months rent is required
* Contracts are minimum 12 months long
* Rent includes bills and Business rates
