Now Let£1154 /per week3000 sq ft unit to rent in Florentia Clothing Village, Vale Road, Manor House N4 N4 Manor House
𓉩 3000 ft²
𓉩 3000 ft²
Price:
Description
| N4_Manor House | Florentia Clothing Village, Vale Road |
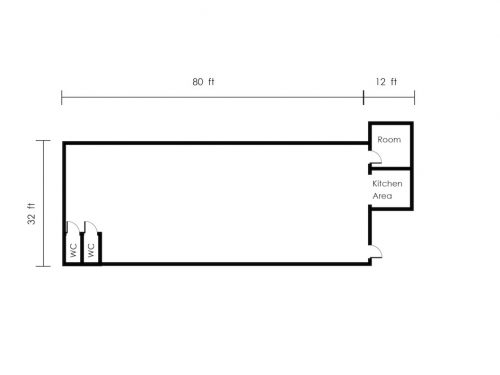
3000 sq ft first floor warehouse space – with flexible use and 24hr access
Space consists of a huge open area, with lots of windows and lots of natural light.
There is 1 extra room off the main open area, 2 toilets and a kitchen area.
The unit has a beautiful wooden floor, and a ceiling height of 9 feet.
The windows are double glazed.
The unit also has electricity, lighting and phone points.
The Village is a secure industrial estate, there is 24hr security, and a manned gatehouse to control access.
There is also an on-site gym and cafe.
The warehouse is in an industrial estate home to many fashion designers, artists etc.
Nearest station Manor House (Piccadilly Line) / Seven Sisters (Victoria Line)
Can be used for a variety of purposes.. either for artists / sculptors / designers / photographers etc.spa
Available Now
* One months deposit plus one months rent is required
* Contract length is 2-3 years, according to potential tenants requirements
* Rent includes Business Rates / Service Charge / Water
* Excludes electricity
