Now Let£1154 /per week3000 sq ft ground floor warehouse space – with flexible use and 24hr access in N4 Manor House Florentia Clothing Village N4 Manor House
𓉩 3000 ft²
𓉩 3000 ft²
Price:
Description
| N4_Manor House | Florentia Clothing Village, Vale Road |
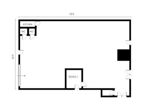
3000 sq ft ground floor warehouse space – with flexible use and 24hr access
Space consists of a huge open area, with lots of windows and lots of natural light.
There is 1 extra room off the main open area, 2 toilets and a kitchen area.
The unit has a beautiful wooden floor (concrete floor underneath) and a ceiling height of 9 feet.
The windows are double glazed.
The unit also has electricity, gas central heating, lighting and phone points.
The Village is a secure industrial estate, there is 24hr security, and a manned gatehouse to control access.
There is also parking, gym and a cafe on site.
The management office for this property is also located on site.
The warehouse is in an industrial estate home to many fashion designers, artists etc.
Nearest station Manor House (Piccadilly Line) / Seven Sisters (Victoria Line)
Can be used for a variety of purposes.. either for artists / sculptors / designers / photographers etc.spa
Available Now
* One months deposit plus one months rent is required
* Contract length is 2-3 years, according to potential tenants requirements
* Rent includes Business Rates / Service Charge / Water
* Excludes electricity
