Now Let£681 /per week2000 sq ft 1st floor Art studio / Creative office space available to rent in converted warehouse in E2 London Fields, Vyner street E2 London Fields
Price:
Description
| E2_London Fields | 65 Vyner Street |
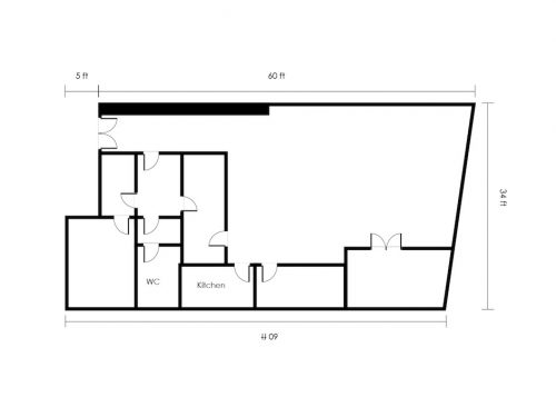
2000 sq ft 1st floor unit with huge wide open area, 5 office rooms kitchen area and bathroom to rent in converted warehouse building E2 London Fields, Vyner Street
The space is located on the 1st floor and consists of a huge open area, big enough for 8 – 10 desks, 5 separate office rooms a kitchen area and bathroom.
The unit has bright white walls throughout the entire space, and has vinyl flooring in the open area, bathroom and kitchen, but contains carpet in all the office rooms.
The unit has windows in each office room for natural light with an amazing view overlooking the riverside.
Usage for the property is flexible / mixed use.
The space has 24 Hour access with direct access from Vyner street.
The unit has water, electricity and gas central heating.
The local community is occupied by artists, photographers, painters and other creative types.
Nearest Station: Bethnal Green Underground, London Fields and Hackney Central Overground
Ideal for / painters / artists / photographers / designers / creative types.
Fantastic location – and riverside too – very peaceful environment, 5 mins from London Fields Park, all shops 1 minute away.
Vyner St is reputed to have the most contemporary art galleries in London.
Available Now
* One months deposit plus one months rent is required
* Contracts are minimum 12 months long
* Rent excludes bills and Business rates
