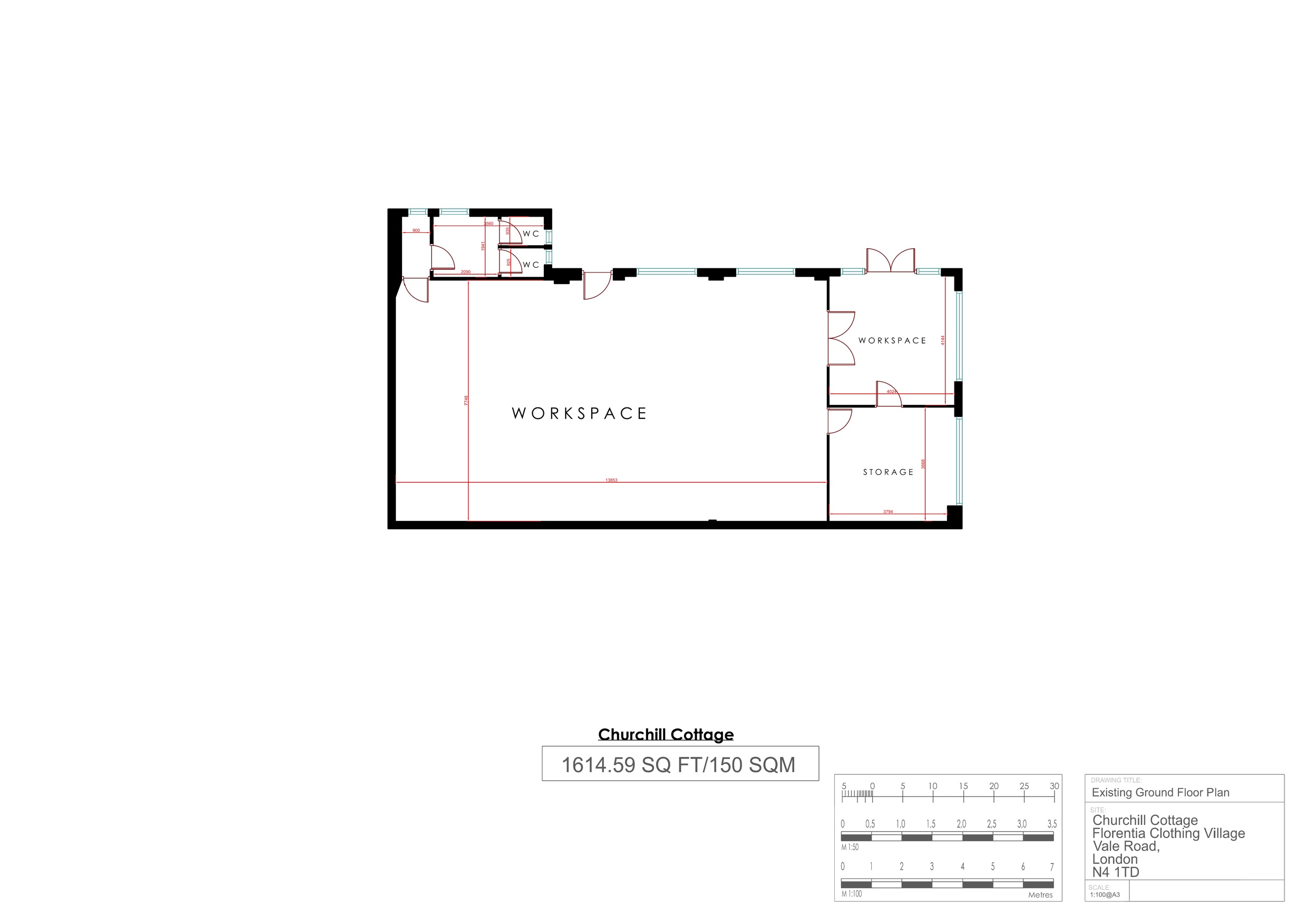
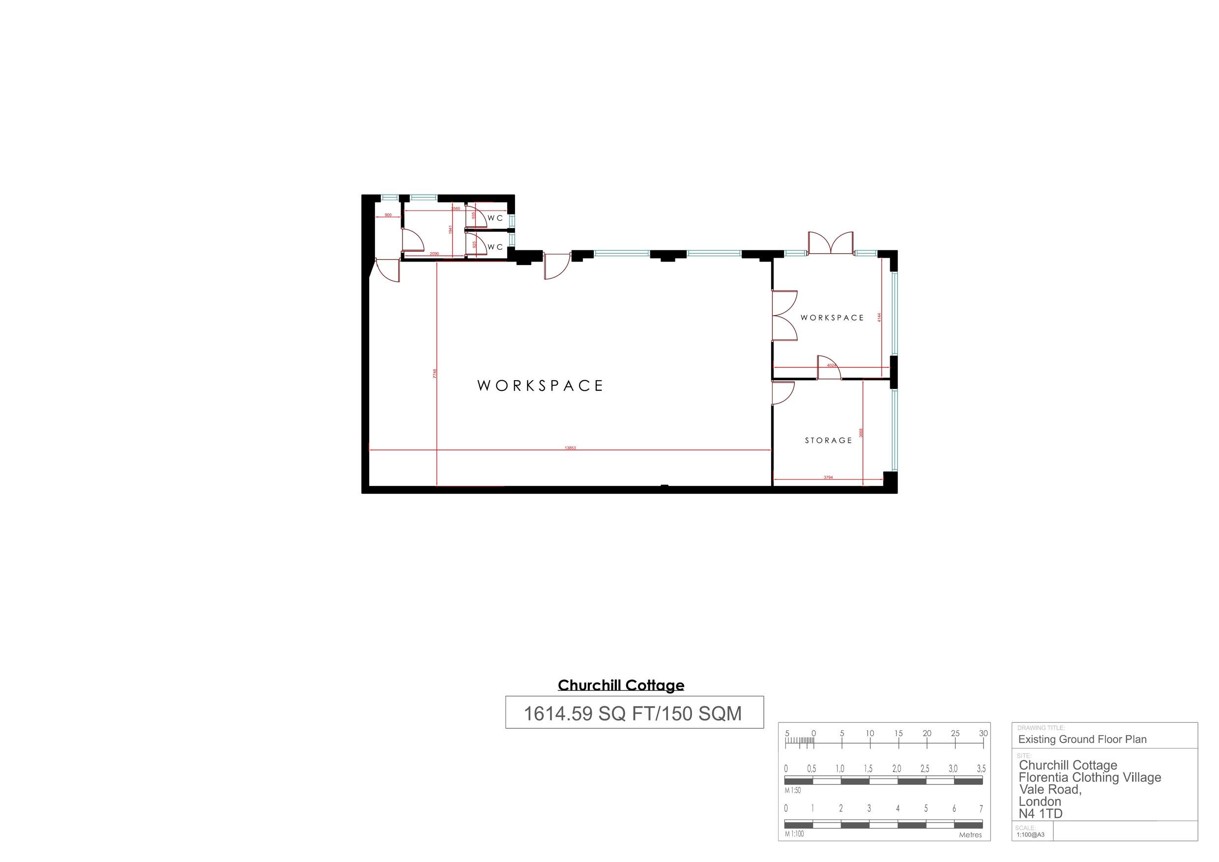
Now Let£770 /week1615 sq ft warehouse unit to rent with flexible use and 24 hour access, located in N4 Manor House, Florentia Clothing Village. N4 Manor House
𓉩 1615 ft²
𓉩 1615 ft²
Price:
Description
| N4_Manor House | Florentia Clothing Village, Vale Road |
1615 sq ft warehouse unit to rent with flexible use and 24 hour access, located in N4 Manor House, Florentia Clothing Village.
The unit has a huge open area with white walls, concrete flooring, panelled windows and skylights throughout the entire unit for natural light.
The unit has water and electricity points.
The unit has 24 hour access.
Included in the rent:
*Business rates
*Service charge
*Water
*24hr access
*24hr security and CCTV monitoring
*New three phase wiring
Onsite facilities include:
*Onsite parking
*Brand new cafe
*Gym
*Florist
*Photography studio available for hire
*Onsite management and maintenance team
The Village is a secure industrial estate, there is 24hr security, and a manned gatehouse to control access.
The management office for this property is also located on site.
The warehouse is in an industrial estate home to many fashion designers, artists etc.
Nearest station Manor House (Piccadilly Line) / Seven Sisters (Victoria Line)
Can be used for a variety of purposes.. either for artists / sculptors / designers / photographers etc.
Rent:
Year 1: £40,000 (£3,333 per month)
Year 2: £45,000 (£3,750 per month)
Year 3: £48,000 (£4,000 per month)
Available Now
* Two months deposit plus one months rent is required
* Contract length is 3 – 5 years, with 6 months break clause
* Rent includes Business Rates / Service Charge / Water / Waste disposal
* Excludes electricity and Gas
