Now Let£320 /per week1300 sq ft unfinished project live work unit in Alston Works, High Barnet EN5 EN5 High Barnet
𓉩 1300 ft²
𓉩 1300 ft²
Price:
Description
| EN5_High Barnet | Alston Works, Alston Road |
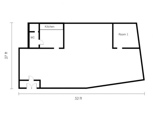
1300 sq ft open plan live work unit available to rent in Alston Works.
Unfinished project, so has shower etc, but needs work
There is concrete flooring, the unit has electricity, lighting, a WC / shower and kitchen.
Ideal for artists / photographers / designers / creative types.
On site design studios, art studios, art gallery, parking available on site.
Alston Works contains many other live work units, there is a nice artistic community on site.
The area is also very green and peaceful, 5 mins from golf course, parks etc.
24 hour access. Very secure & very peaceful location.
Nearest Station: High Barnet.
5 minutes walk from the High Street / Shops / Shopping Centre.
Alston works is known for its rich history during the Victorian and Edwardian period; it was once famed as the largest dental manufacturing factory known in Europe producing everything relating to dentistry from dental chairs to false teeth.
The General Manager of the Dental Manufacturing Company Ltd formed Alston Football and Athletic Club for his staff turning Alston works into the birthplace of Alston AFC which is known today as Barnet Football club.
https://en.wikipedia.org/wiki/Barnet_F.C.#Barnet_Avenue_.26_Barnet_Alston_.281901.E2.80.931919.29
http://www.highlivingbarnet.com/alston-works-victorian-industry-helped-shape-barnet/
Available Now
* One months deposit plus one months rent is required
* Contracts are 12 months long
* Rent excludes bills and Business Rates
