Now Let£150 /per week Incl Bills130 Sq ft Room available to rent in warehouse containing a total of 12 studios, with their own shower / toilet, communal kitchen and huge communal open area. in N4 Manor house. N4 Manor House
𓉩 130 ft²
𓉩 130 ft²
Price:
Description
| N4_Manor House | Vale Road |
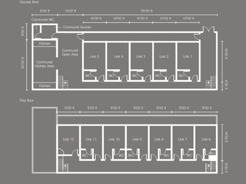
Room available to rent in warehouse. The warehouse contains a total of 12 rooms, each room with their own toilet and shower, communal kitchen and huge communal open area. in N4 Manor house.
The Room is 130 sq in size and located on the 1st floor, part of a huge 2900 sq ft split level warehouse conversion.
The warehouse has total of 12 rooms, 2 communal kitchens, a communal area, communal toilet and Laundry room, has a double door entrance, wooden and concrete floors, bright white walls, and a ceiling height of 9’00 feet.
Located in the Harringay warehouse district (https://en.wikipedia.org/wiki/Harringay_Warehouse_District)
The warehouse has electricity points, lighting, gas central heating, WIFI and a cleaner once a week all included in the rent.
Bills are Included in the rent.
The building has 24 hour access, with onsite parking space available.
The warehouse is in an industrial estate home to many fashion designers, artists etc.
Fantastic location located half a mile from Sainsbury’s, Homebase and Mc Donald’s.
Nearest station Manor House (Piccadilly Line) / Seven Sisters (Victoria Line)
There is a huge artist community in the area.
Can be used for a variety of purposes e.g. fashion designers/ artists / sculptors / film producers / photographers/ etc.
Available Now
* One months deposit plus one months rent is required
* Contract length is flexible, according to what potential tenants require
* Rent includes bills and business rates
COMMUNAL AREAS SHOWN BELOW:
