Now Let£450 /Week1200 sq ft split level warehouse unit with parking available to rent in Finchley, N12 8PT N12 Finchley
𓉩 1200 ft²
𓉩 1200 ft²
Price:
Description
| N12_Finchley | High Road |
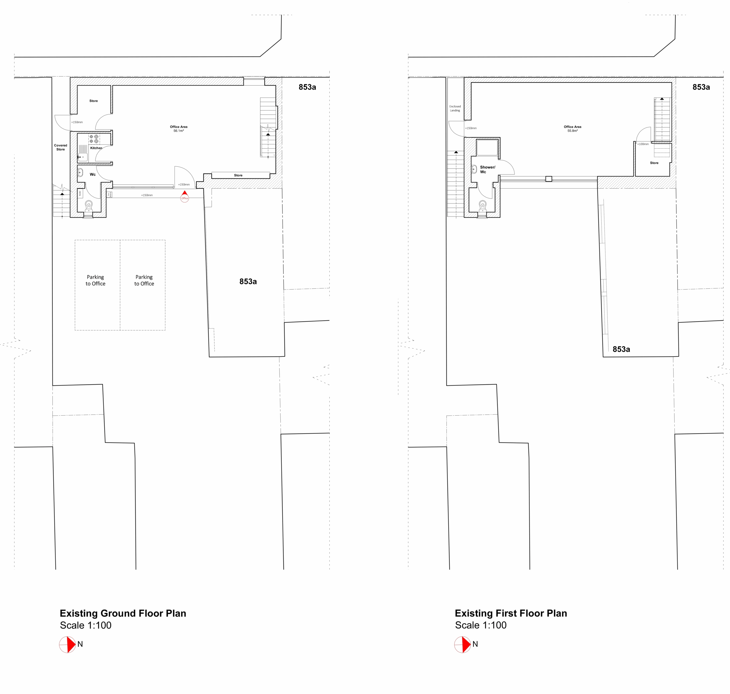
1200 sq ft split level live work unit with parking available to rentThe unit is brand new, and is 600 sq ft per floor. The whole unit is carpeted and double glazed. There are 2 WCs, 1 shower and a kitchen. The unit is gas centrally heated.The kitchen is fully fitted, with a sink, oven, gas hob, fridge, microwave and dishwasher.The ground floor consists of a large open area, with a separate WC, kitchen, and small room. There are many electrical points in floor boxes, ideal for 4 or 5 desk spaces if needed.The first floor is a large open area, with another WC and a shower. The first floor has a fire exit leading to a small outside area, (for smoking or storage).The unit is on the High Road but set back, with a lovely entrance arch, it has it’s own entrance, a small yard, and parking for 2 or 3 cars.Very secure, the gate to the car park is locked, and the unit is alarmed too.
Available Now
£450 per week
* One months deposit plus one months rent is required.
* Contracts are 12 minimum months long.
* Rent excludes bills and business rates.
£450 Pw / £1950 PCM
