Studios & Offices£481 /per week + VAT1000 sq ft office / studio available in converted piano factory in Stoke Newington N16 N16 Stoke Newington
𓉩 1000 ft²
𓉩 1000 ft²
Price:
Description
| N16_Stoke Newington | Indigo Mews, Carysfort Road |
1000 sq ft office / creative studio available to rent in converted warehouse, formerly known as the piano factory in N16 Stoke Newington, Indigo Mews next to Clissold Park
The premises is part of a stunning conversion of original warehouses, set within a secure cobbled mews just off Stoke Newington Church Street.
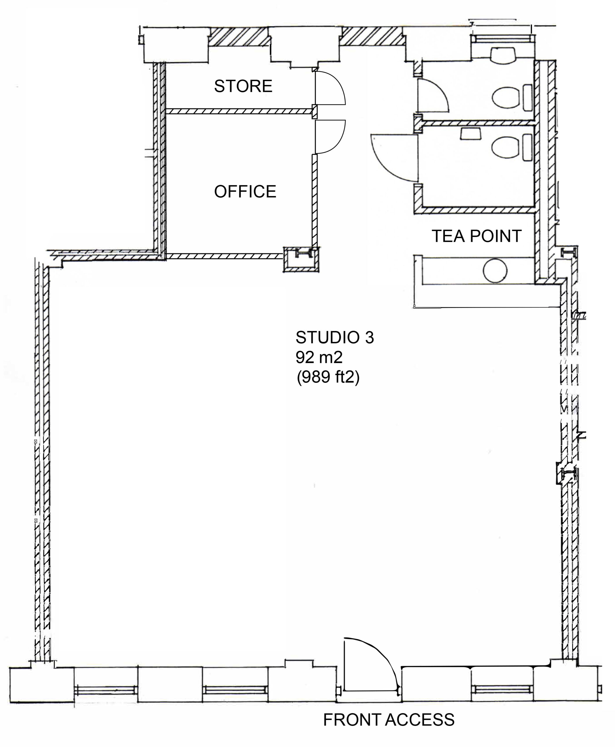
The studio has a solid timber floor, crital windows, a high ceiling (11’06), electricity points, phone points and is gas centrally heated. There is a private office area at the rear of the studio, and a separate storage room.
There are 2 toilets and a kitchen point.
There are phone points, and the studio is CAT 5 cabled.
Fibre optic broadband is available.
There is also an intercom connected to let people in / out of the studio.
Nearest Station: Stoke Newington / Dalston Kingsland / Manor House / Arsenal
Fantastic location – seconds from Clissold Park and the shops and eateries of Stoke Newington Church Street.
Parking available at cost.
Can be used for a variety of purposes… either for artists / photographers / designers / painters / writers or as a design studio / office for companies, etc.
Available Now
* Two months deposit plus one months rent is required
* Contracts are minimum 12 months long
* Rent excludes bills
* Rent excludes business rates
* Rent excludes Service charge £252+VAT pcm
£538.46 per week + VAT
