Now Let£577 /per week1000 sq ft live work style unit in converted warehouse studio with 5 rooms shower and toilets located 1 min from Hackney wick station. E9 Hackney Wick
𓉩 1000 ft²
𓉩 1000 ft²
Price:
Description
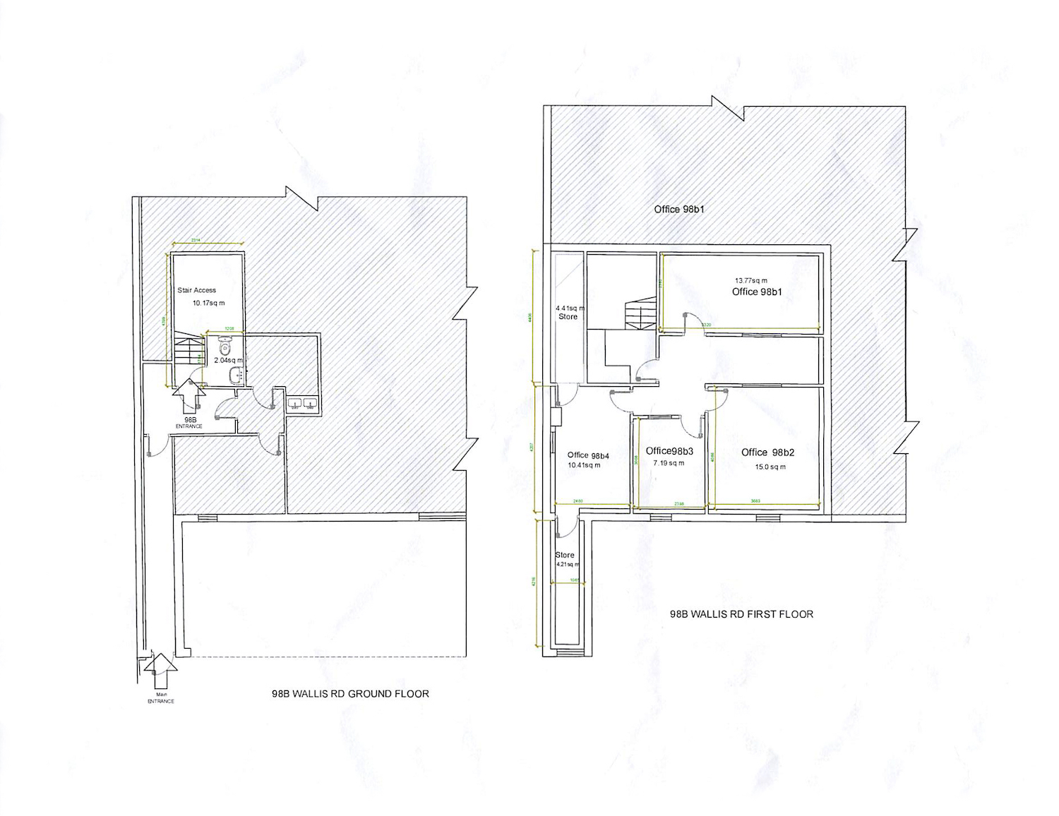
| E9_Hackney Wick | 98 Wallis Road |
Bright 1000 sq ft art studio / light industrial warehouse conversion available with 4 rooms 1 workshop area, kitchen, shower and toilet.
The studio is split level, 1000 sq ft in size and consists 5 rooms, 2 storage areas, kitchen area and toilet; 4 rooms and kitchen are located on the first floor and a room, shower and toilet on the ground floor.
The unit has bright white walls, windows for lots of natural light, flint grey concrete flooring (carpet flooring on the ground floor) and a ceiling height of 11ft.
The studios have gas central heating and electricity.
There is also a communal outside area for the community to hangout, to relax, to interact and to share.
Join our thriving community of creative individuals, start-ups and small businesses, enjoying the benefits of an exceptional multi-purpose space in Seven Sisters, 10 minutes from the station.
The local cafe shops serve up delicious food, coffees and there’s also bars for locally brewed ale. the area is also very known for their art galleries, exhibitions, installations and pop-up restaurants.
The building has CCTV monitoring and FOB access for security.
Parking available on site.
Located in Pleasant Valley, Main Yard studios 1 minute from hackney wick station .
The rest of the building is occupied by artists, photographers, painters and other creative types.
Nearest Station: Hackney Wick Station (overground) / Bow Station (underground / DLR)
1 minute from the River Lea, very peaceful location, huge artist community in the area.
Ideal opportunity for startups, photographers, artists individually or with your colleagues, collaborators or employees.
* one months deposit plus one months rent is required
* Contracts are 12 months long
* Rent excludes bills and business rates
LOCATION & COMMUNAL AREAS SHOWN BELOW:
